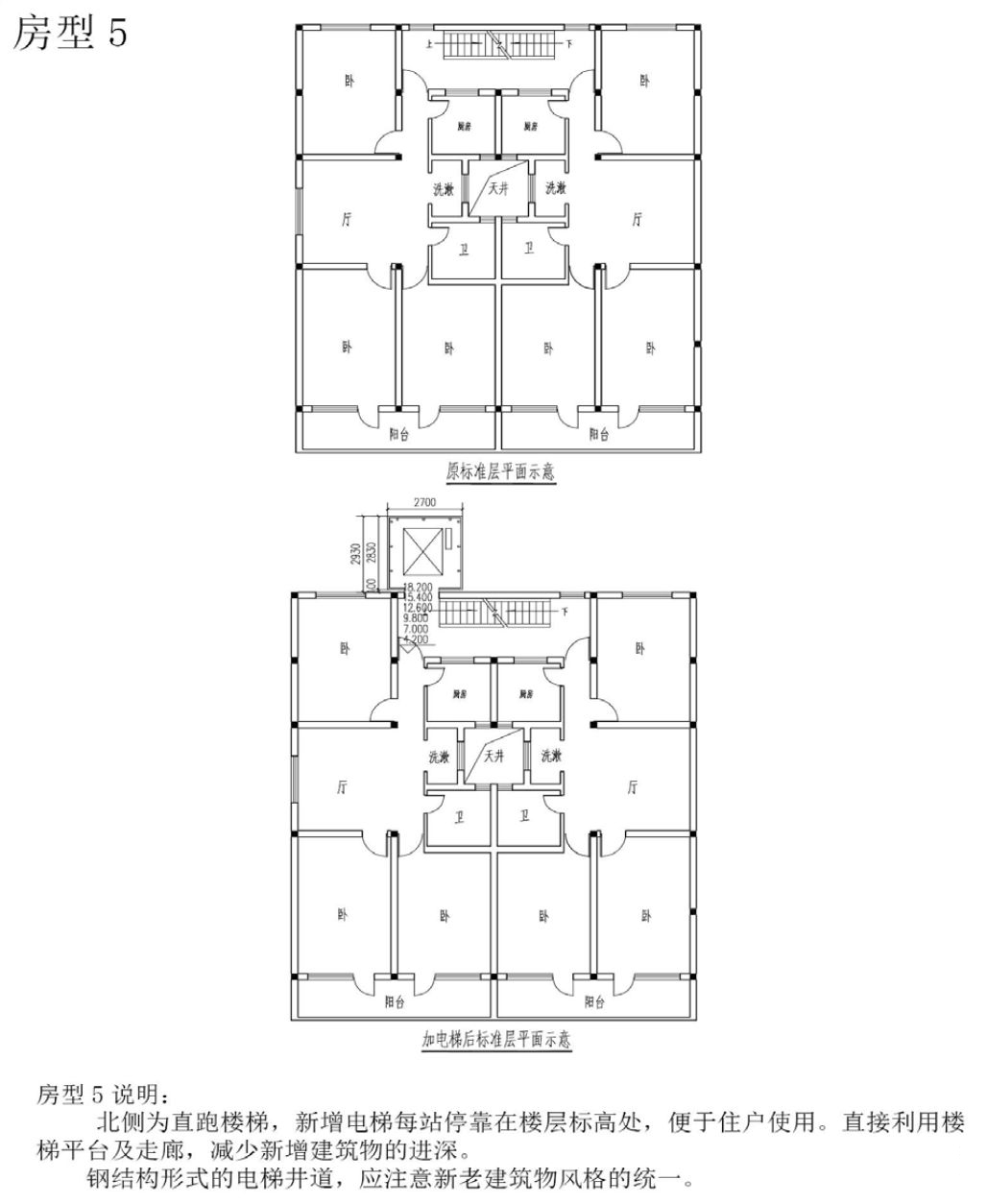
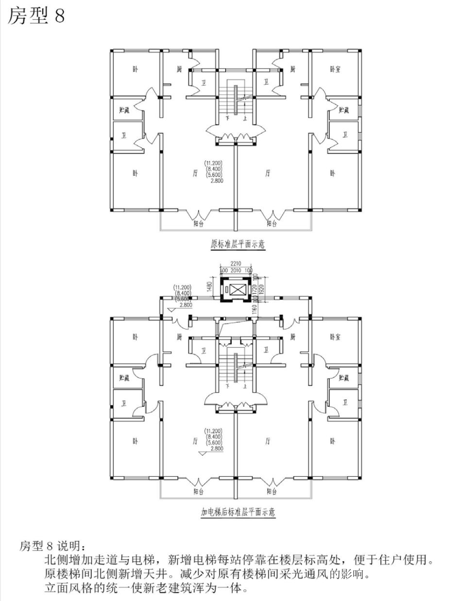
八種房型八種舊樓加裝電梯方案,總有一種適合你!(點擊下面圖片查看清晰大圖)















PS:本文節選自《上海市既有多層住宅加裝電梯建設指南》
下面我們統計了全國各地有補貼的城市及補貼明細。
明確有補貼的省份城市:
河北、江西上饒、云南、山東聊城
即將有補貼的省份城市:
哈爾濱:(即將每臺補貼15萬元)
已有補貼的城市:
北京海淀: 最高補貼70萬(其中設備購置方面是在市財政補貼40%、最高24萬元/臺的基礎上再次進行財政補貼,使補貼比例擴大到50%、最高30萬元/臺;而在施工過程中需要對水、電、氣、熱、暖等實施改造的,由市財政按照實際發生費用給予財政補貼,最高不超過40萬元/臺。)
山東濟南: 七層住宅加裝電梯每部補貼22萬元;六層住宅加裝電梯每部補貼20萬元;五層住宅加裝電梯每部補貼18萬元;四層住宅加裝電梯每部補貼16萬元。
山東青島: 市級一臺補貼10萬元,有電梯井道的補貼5萬。另外各區(市)財政安排的獎補資金,原則上不低于市級財政獎補標準。
山東濰坊: 奎文區、濰城區、坊子區、寒亭區(含經濟區)、高新區、保稅區。既有多層住宅加裝電梯每臺補助15萬元。
山東泰安: 最高補貼20萬
重慶: 最高補貼25萬(每部增設電梯的勘查、設計、施工等總費用的60%予以補貼)
安徽合肥: 補貼額為25萬元(包含了10年維保費及電費補貼3000元)
安徽滁州: 七層每部補貼18萬元;六層每部補貼17萬元;五層每部補貼16萬元;四層每部補貼15萬元。
安徽銅陵: 七層20萬元/臺,六層18萬元/臺,五層16萬元/臺;涉及管線改造的,另增加5萬元補助資金。
安徽蕪湖: 最高補貼20萬(涉及管線改造的,另增加5萬元補助資金)。
北京: 最高補貼24萬
上海: 補貼24萬
浙江杭州: 補貼20萬
浙江寧波: 最高補貼20萬
浙江平湖: 每臺補貼5萬
浙江湖州: 每臺補貼15萬
黑龍江黑河: 每臺補貼7萬
浙江嘉興: 電梯最高補貼20萬(政府按照電梯加裝費用50%的比例給予最高不超過20萬元/臺的補助,市、區兩級財政各承擔50%;涉及管線遷移所需費用,由市級財政給予最高不超過5萬元/臺的補助)
浙江臺州椒江區: 電梯每臺補貼最高20萬(對涉及給排水、供電、管道煤氣、通信設施等管線遷移的,費用由區財政按照每臺不超過10萬元的標準進行補貼)
四川成都: 最高補貼20萬
四川瀘州: 每部電梯補貼20萬/元(原有電梯井的每臺補貼10萬元)
四川南充: 補貼15萬
四川德陽:6層補貼15萬(以電梯停靠6個樓層為基準,每部電梯補貼15萬元,其中,已預留電梯井的建筑,每部電梯補貼10萬元),每增加一層停靠樓層增加補貼0.5萬元,6層以下(含6層),財政不予補貼。
四川綿陽: 最高補貼15萬
四川自貢: 最高補貼20萬
江蘇南京: 最高補貼20萬
江蘇揚州: 五層、六層和七層以上分別補貼16萬元、18萬元和20萬元
江蘇無錫: 住宅樓為七層及七層以上的補貼10萬元/臺、六層的9萬元/臺、五層的8萬元/臺、四層的7萬元/臺。
江蘇常州: 對符合加裝電梯申請條件并出資的最低生活保障家庭,每戶按其加裝電梯出資金額的百分之八十給予財政資金補助。
廣東廣州: 補貼10萬
廣東廣州越秀區: 最高補貼15萬(含困難低保家庭補助5萬)
廣東惠州: 補貼5萬
廣東佛山南海區: 補貼3萬
廣東中山: 每臺補貼10萬(2018年12月23日實施)
廣東江門蓬江區: 最高補貼10萬
廣東汕頭: 每臺補貼4萬
福建福州: 最高補貼10萬
福建廈門: 最高補貼22萬
福建莆田: 每臺補貼8萬
福建漳州: 最高補貼10萬(六層、每減少一層減少0.5萬)
陜西西安: 補貼15萬
陜西寶雞: 最高補貼15萬(停靠7個樓層政府補貼15萬/單元。每增減一個停靠樓層相應增減補貼3000元/單元。)
陜西咸陽:15萬(具體待查)
陜西銅川: 每臺補貼10萬
湖北武漢: 每臺補貼10萬
湖北十堰: 最高補貼10萬
甘肅蘭州: 電梯補貼10萬,配套補貼不低于10萬
江西九江: 以獎代補每臺補貼3萬元
河南鄭州: 最高補貼15萬
廣西: 最高補貼18萬(補貼標準以七層住宅補貼上限15萬元/臺為基準,住宅樓層數每增加一層,補貼上限增加10%,住宅樓層數每減少一層,補貼上限減少10%,即4層住宅補貼上限10.5萬元/臺,5層住宅補貼上限12萬元/臺,6層住宅補貼上限13.5萬元/臺,7層住宅補貼上限15萬元/臺,8層住宅補貼上限16.5萬元/臺,9層住宅補貼上限18萬元/臺。)
廣西南寧: 最高20萬(如果是7層住宅加裝電梯,最高不僅可享受自治區級財政15萬元/部的補貼,還能享受南寧市級財政5萬元/部的補貼。)
廣西柳州: 每臺最高補貼20萬(《柳州市關于推進既有住宅加裝電梯工作的實施意見》)(下簡稱“實施意見”)已經通過市委市政府審議,近期發布實施)
無錫: 住宅樓為七層及七層以上的補貼10萬元/臺、六層的9萬元/臺、五層的8萬元/臺、四層的7萬元/臺。
湖南株洲: 每臺補貼10萬。
寧夏銀川: 每臺補貼15萬(10月1日前完成土建)(對在2019年10月2日-2021年12月31日期間,每部按照規定完成加裝電梯并驗收合格的,由銀川市財政按每部5萬元的標準給予補貼之外,三區政府根據情況給予補貼。)
青海省: 每臺電梯獎勵15萬。
新疆烏魯木齊: 有補貼,金額未知。
蘇州: 最高20萬/臺資金補貼(涉及管線遷移所需費用由各管線單位和政府共同承擔。姑蘇區的補貼資金由市、區財政分別承擔,具體辦法另行制定。吳中區、相城區、工業園區、高新區、吳江區的既有住宅增設電梯補貼資金由各區財政自行承擔。常熟市、昆山市、太倉市、張家港市可結合實際參照執行)
來源:網絡



